您当前位置:中国建材家居网 >> 新闻频道 >> 建材知识 >> 浏览文章

临海工程防水如何实现“零缺陷”,勇夺金禹奖金奖?

-- 发布时间 2019/7/9 10:09:36 浏览(
【导读】工程实践表明,涂卷复合的防水系统形成的一级防水标准能够很好地满足临海城市的地下建筑防水要求,保证工程防水的长期有效。

  作为卓宝科技2018年度金禹奖金奖获奖项目,保利中央海岸位于海口秀英港,项目总占地面积58万㎡,建筑面积约120万㎡。项目位于海口滨海沿线地带,是海口国贸CBD板块与西海岸板块的交汇点。其中1#地块,屋面:约11000㎡;地下室:约81000㎡。本位主要以1#地块为例,重点介绍了地下室底板、侧墙、屋面、种植顶板等部位的防水施工。

临海工程防水如何实现“零缺陷”,勇夺金禹奖金奖?

临海工程防水如何实现“零缺陷”,勇夺金禹奖金奖?

  1、防水方案设计

  考虑到本项目属于临海工程,对于防水要求比较高。故地下室底板、侧墙、顶板、屋面均为一级防水设防要求,即在结构自防水的基础上再增设两道防水层。

  实际工程表明,涂料+卷材的复合防水做法可以形成互补,有效综合两者各自的优势,防水效果更佳。而在具体选择防水材料时则要考虑卷材与涂料的相容性以及施工的可操作性等,因此涂必定橡胶沥青基类防水涂料与自粘防水卷材的复合防水做法是目前最佳组合。

  针对该项目不同部位,分别采用以下防水方案:

  地下室底板和屋面采用2mm涂必定橡胶沥青防水涂料+1.5mm BAC-P(交叉层膜)双面自粘聚合物改性沥青防水卷材;

  侧墙采用1.5mm涂必定橡胶沥青防水涂料(立面专用型)+1.5mm BAC-P(交叉层膜)双面自粘聚合物改性沥青防水卷材;

  地下室顶板有种植要求,采用2mm涂必定橡胶沥青防水涂料+4mm BAC(聚酯胎)耐根穿刺自粘聚合物改性沥青防水卷材。

  1.1 地下室底板的做法

  地下室底板采用2mm涂必定橡胶沥青防水涂料+1.5mm BAC-P(交叉层压膜)双面自粘聚合物改性沥青防水卷材的复合做法:

  先将涂料和卷材施工在垫层上,卷材施工完成后揭除其上表面隔离膜,待浇筑细石混凝土保护层时,卷材的自粘胶可与保护层形成“反粘”。虽然此时,涂料与上部的卷材和下部的垫层都紧密粘结,但由于涂必定橡胶沥青涂料的100%内聚力破坏,所以即使垫层出现沉降,其破坏部位也只是在涂料本身,并不会影响上部的卷材,因为卷材依然牢固地与细石混凝土保护层反粘在一起,继续发挥其防水功能。如图1所示。

临海工程防水如何实现“零缺陷”,勇夺金禹奖金奖?

  图1地下室底板防水做法

  1.2 地下室侧墙的做法

  地下室侧墙采用1.5mm涂必定橡胶沥青防水涂料(非固化立面专用型)+1.5mm BAC-P(交叉层压膜)双面自粘防水卷材的复合做法。涂料采用专门研发的立面专用型,具有更好的抗流坠、耐高温等性能。BAC-P双面自粘卷材为薄质材料,质轻,服帖性好,立面施工更加简便。防水层施工完成后,考虑到在实际回填土的过程中难以完全按照规范要求进行,为了避免防水层受到影响,采用砌120砖墙保护。如图2所示。

临海工程防水如何实现“零缺陷”,勇夺金禹奖金奖?

  图2 地下室侧墙防水做法

  1.3 地下室顶板的做法

  地下室顶板有绿化要求,故采用2mm涂必定橡胶沥青防水涂料+4mm BAC(聚酯胎)耐根穿刺自粘聚合物改性沥青防水卷材的复合做法。BAC耐根穿刺自粘防水卷材的阻根原理为化学阻根,阻根效果优异,而且可以和涂必定橡胶沥青涂料完美融合,有效消除卷材与涂料之间的窜水层。

  在防水层施工之前,还采用抛丸技术将结构层表面的浮浆或酥松层去掉,可避免防水层与结构层之间窜水。就算防水层存在薄弱环节,但防水层与结构层之间没有水存在,植物根系又具有向水性的特点,那么它就没有继续向下生长的动力,无论是对防水层还是结构层都有了很好地保护作用。如图3所示。

临海工程防水如何实现“零缺陷”,勇夺金禹奖金奖?

  图3 地下室顶板防水做法

  1.4 屋面的做法

  屋面为上人保温平屋面且结构找坡,采用2mm涂必定橡胶沥青防水涂料+1.5mm BAC-P(交叉层压膜)双面自粘聚合物改性沥青防水卷材的复合做法。涂必定橡胶沥青防水涂料始终保持黏稠状,具有优异的渗透、蠕变与密封性能,一次涂刮成型便能适应基层变形及开裂;交叉层压膜双面自粘防水卷材采用自粘方式搭接,搭接简易、不需粘结剂,且拥有很好的搭接质量。自粘卷材和涂必定涂料各具特点,两者复合使用,使具有蠕变性的无缝涂料和厚度均一的自粘卷材形成一个整体,优势互补,使防水系统更加可靠。如图4所示。

临海工程防水如何实现“零缺陷”,勇夺金禹奖金奖?

图4 上人保温平屋面防水做法

  2、防水施工

  2.1 工艺流程

  加热涂必定橡胶沥青涂料→清理基层→基层处理→节点加强处理→定位弹线→试铺自粘卷材→施工涂必定橡胶沥青涂料→铺贴自粘卷材→卷材搭接→组织验收

  2.2 施工工艺

  2.2.1加热涂料

  把橡胶沥青涂料放入专用的加热器中进行加热,使膏状橡胶沥青涂料完全融化成流态状备用。如图5所示。

临海工程防水如何实现“零缺陷”,勇夺金禹奖金奖?

  2.2.2基层处理

  地下室顶板、屋面基层采用抛丸机及打磨机把基面的浮浆、砂子等清理干净,使基层坚实平整。抛丸机不能操作部位使用手持打磨机打磨。(外墙基层表面不需抛丸处理,不平整部位使用手持打磨机打磨平整)如图6所示。

临海工程防水如何实现“零缺陷”,勇夺金禹奖金奖?

  图6 (左)抛丸机处理

临海工程防水如何实现“零缺陷”,勇夺金禹奖金奖?

  图6(右)抛丸机处理后效果

  然后,用扫帚、铁铲等工具将基层表面的灰尘、杂物清理干净,基面保持基本平整,对于不平的部位需修补平整,用长柄滚刷将基层处理剂涂刷在已处理好的基层表面,涂刷要均匀,不得漏刷或露底。图7所示。

临海工程防水如何实现“零缺陷”,勇夺金禹奖金奖?

  2.2.3 节点加强处理

  节点部位(如:阴阳角等)采用涂必定橡胶沥青涂料(非固化)进行加强处理。在阴阳角等节点部位涂刷一遍非固化橡胶沥青涂料然后粘贴玻纤网格布,然后再涂刮非固化橡胶沥青防水涂料将网格布完全覆盖,附加层涂刷宽度为500mm,转角两侧各半。如图8所示。

临海工程防水如何实现“零缺陷”,勇夺金禹奖金奖?

临海工程防水如何实现“零缺陷”,勇夺金禹奖金奖?

  图8b 加强处理尺寸

  2.2.4 试铺卷材

  1)定位弹线:以分格的方式进行弹线,确定施工橡胶沥青涂料的范围,每个格子的宽度为0.92m,长度为5m,面积为4.6㎡。如图9所示。

  2)试铺操作:将自粘卷材自然松弛的摊开,按控制线摆放好,然后把卷材从两端往中间收卷。

临海工程防水如何实现“零缺陷”,勇夺金禹奖金奖?

  2.2.5 涂料施工

  1) 刮涂法施工:把加热完毕的橡胶沥青涂料,装入标准桶内均匀倒在施工区域内,确保涂料的用量为2.5kg/㎡,按照弹线的范围将涂必定橡胶沥青涂料涂刮在基面上,涂刮厚度均匀,不露底。

  2) 喷涂法施工(立面):把加热完毕的橡胶沥青涂料装入专用喷涂设备,按照预先划分完毕的区间进行喷涂施工,喷涂时前后两遍应方向交叉进行,喷涂施工时确保涂料的用量为2.0kg/㎡。如图10 所示。

临海工程防水如何实现“零缺陷”,勇夺金禹奖金奖?

图10 (1)刮涂施工

临海工程防水如何实现“零缺陷”,勇夺金禹奖金奖?

  图10(2)喷涂施工

  2.2.6 铺贴自粘卷材

  1)铺贴平面卷材:涂刮橡胶沥青涂料的同时,揭除自粘卷材下表面隔离膜,将卷材粘贴在涂料上。同时,将自粘卷材搭接边的隔离膜揭除,进行自粘搭接,搭接宽度80mm,卷材T型搭接口处用涂必定橡胶沥青防水涂料进行内外密封处理。并用压辊滚压密实。

  2)铺贴立面卷材:卷材由下至上进行铺贴。铺贴前揭除自粘面隔离膜后粘贴。要求铺贴顺直、平整、无褶皱,铺贴完毕随即用刮板赶压排除卷材下方空气,使涂料与卷材粘贴紧密、牢固。卷材长、短边之间为搭接连接,搭接宽度均为80㎜。搭接前先将卷材搭接部位的隔离膜揭除,粘贴后随即用刮板用力赶压排出空气,使卷材搭接边粘结严密。如图11所示。

临海工程防水如何实现“零缺陷”,勇夺金禹奖金奖?

  2.2.7 女儿墙收口密封

  卷材收口处,先用压条固定,固定件间距不大于250mm,再橡胶沥青防水涂料进行密封。如图12 所示。

临海工程防水如何实现“零缺陷”,勇夺金禹奖金奖?

  图12 女儿墙收口密封

  3、节点处理

  3.1 平立面交接处

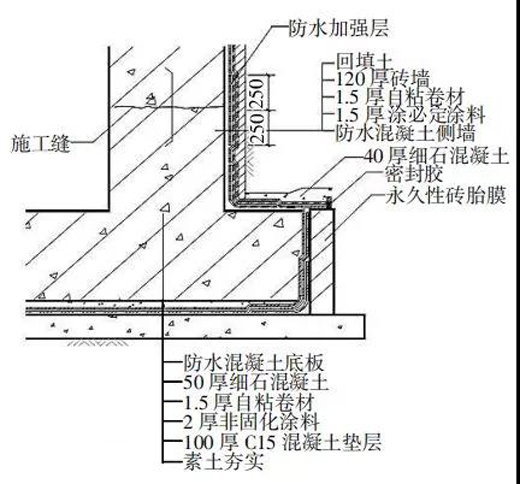
  底板与侧墙的交接处(图 13)施工要点:

  1)底板与侧墙交角处、侧墙的施工缝部位需涂刷 500 mm 宽的涂必定涂料作加强层;

  2)底板卷材翻在永久性砖胎膜之上,并用密封胶收口密封,并在上面施作 40 mm 厚细石混凝土作保护层。

临海工程防水如何实现“零缺陷”,勇夺金禹奖金奖?

  图13 底板和侧墙交接处

  3.2 底板后浇带

  底板后浇带(图 14)施工要点:

  1)阴阳角部位涂刷500 mm 宽的非固化涂料作加强层,后浇带处的涂料宽出两端各250 mm;

  2)后浇带内层混凝土中心设置橡胶止水带,后浇混凝土与先浇混凝土交互处设置钢板止水带。

临海工程防水如何实现“零缺陷”,勇夺金禹奖金奖?

  图14 后浇带防水做法

  3.3 穿墙管

  穿 墙 管(图 15)施工要点:

  1)卷材进行等分,设置于穿墙管一圈作为防水加强层;

  2)固定式穿墙管应加焊止水环,并做好防腐处理;

  3)为确保密实效果,施工补偿收缩防水混凝土,保证混凝土密实,加强养护;

  4)密封材料嵌填应密实、连续、饱满且粘结牢固。

临海工程防水如何实现“零缺陷”,勇夺金禹奖金奖?

  图15 穿墙管

  结语

  海口保利中央海岸采用涂必定橡胶沥青防水涂料与自粘聚合物改性沥青防水卷材结合的复合防水系统,并在系统中引入了“零缺陷”保险保障机制,倒逼企业提升责任心、提高材料与施工质量,能够最大程度地保障防水工程的长期可靠,形成一个良性的质量循环。工程实践表明,涂卷复合的防水系统形成的一级防水标准能够很好地满足临海城市的地下建筑防水要求,保证工程防水的长期有效。

  参考文献

  [1]现行国家建筑安装工程施工与验收规范(规程)、质量检验评定标准;

  [2]国家标准《建筑工程施工质量验收统一标准》(GB50300-2013);

  [3]国家标准《地下防水工程技术规范》(GB 50108-2008);

  [4]国家标准《地下防水工程质量验收规范》(GB 50208-2011);

  [5]本工程特点,施工现场环境、自然条件等。

免责声明:此文内容为本网站转载企业宣传资讯,仅代表作者个人观点,与本网无关。文中内容仅供读者参考,并请自行核实相关内容。如用户将之作为消费行为参考,本网敬告用户需审慎决定。本网不承担任何经济和法律责任。
相关新闻 --------

视觉焦点

每日推荐

热门新闻

只为高端品牌家居服务!中国十大品牌均是行业内著名的企业品牌;其无论在品牌的知名度、美誉度、产品的品质、售后服务等各方面均获得市场良好的口碑。中国建材家居网展播的数据榜单由网民投票后系统自动生成,排序不分先后。无偿服务于广大消费者,仅供消费者购买参考依据。如有与实际情况不同请及时与本站联系。

中国建材家居网,只为高端品牌家居服务;中国建材家居网是专业、品牌集中的针对高端家居建材十大品牌的服务综合平台;

运营中心地址:上海市浦东张江高科技园区博云路2号浦软大厦12楼 推广联盟QQ:460965656 咨询邮箱:jiancai@jiancai163.cn 网站地图 在线留言

中国建材家居网 版权所有 未经中国建材家居网授权禁止转载、摘编、复制或建立镜像;COPYRIGHT © 2012-2022 ICP证号:粤ICP备09173718号
分享按钮